FIMAA La Spezia

Federazione Italiana Mediatori Agenti d'Affari della provincia di La Spezia

Via Mazzini, 164 - 19038 Sarzana (SP) - 0187.62.43.54

Semindipendente terratetto di nuova costruzione


Sarzana | 5 | Mq 110 | 443.000,00

Descrizione

Nuova proposta di Immobiliare Il Centro!

Nel Comune di Sarzana in loc. Nave, prossima realizzazione di villa plurifamigliare costruito con impiantistiche all'avanguardia volte al contenimento energetico e classe energetica A.
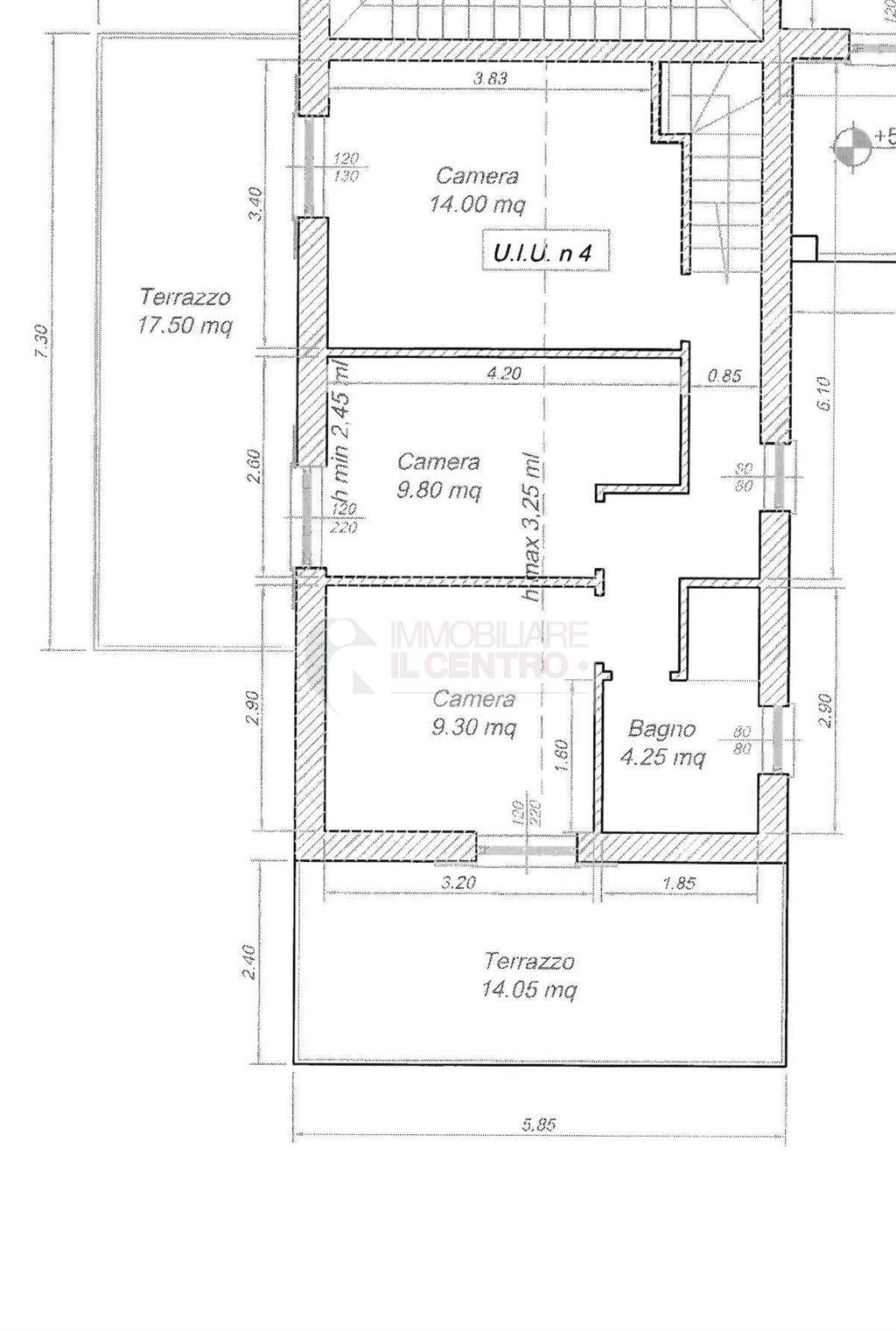
Proponiamo semindipendente terratetto, libera su tre lati composta da: al Piano Terra, soggiorno con angolo cottura e n. 2 porticati per complessivi 32 mq., disimpegno, bagno e ripostiglio; al Piano Primo disimpegno, 3 camere, due terrazze abitabili e bagno.
Completa la proprietà giardino privato di 600 mq. e 2 posti auto .
Ottimo capitolato (sistema di ventilazione meccanica controllata, impianto di riscaldamento autonomo a pavimento con pompa di calore, impianto fotovoltaico 1,5 Kw completo con predisposizione al sistema di accumulo ecc). Consegna dicembre 2027

Dettagli

  • Riferimento: I1-4
  • Tipologia: Casa Semindipendente
  • Comune: Sarzana
  • Zona: Nave
  • Cucina: Angolo cottura
  • N. Bagni: 2
  • N. Camere: 3
  • Box: Posto auto scoperto
  • Piano: Su più livelli di 2
  • Anno costruzione: 2026
  • Stato conservazione: Nuovo
  • Stato: Nuovo
  • Spese cond. annue €:
  • Riscaldamento: Autonomo
  • Caratteristiche

    Terrazzi 32 mq, Balconi 32 mq, Giardino di proprietà 600 mq, Condizionatore

    Classe A1

    Localizzazione - Sarzana

    IL CENTRO snc

    Via Mazzini, 164
    19038 Sarzana (SP)

    0187.62.43.54

    Richiedi informazioni

    Ho letto e accetto informativa sulla privacy.

    Via Mazzini, 164 - 19038 Sarzana (SP) - 0187.62.43.54


    Semindipendente terratetto di nuova costruzione

    5 | Mq 110 | 443.000,00

    Sarzana

    Nuova proposta di Immobiliare Il Centro!

    Nel Comune di Sarzana in loc. Nave, prossima realizzazione di villa plurifamigliare costruito con impiantistiche all'avanguardia volte al contenimento energetico e classe energetica A.
    Proponiamo semindipendente terratetto, libera su tre lati composta da: al Piano Terra, soggiorno con angolo cottura e n. 2 porticati per complessivi 32 mq., disimpegno, bagno e ripostiglio; al Piano Primo disimpegno, 3 camere, due terrazze abitabili e bagno.
    Completa la proprietà giardino privato di 600 mq. e 2 posti auto .
    Ottimo capitolato (sistema di ventilazione meccanica controllata, impianto di riscaldamento autonomo a pavimento con pompa di calore, impianto fotovoltaico 1,5 Kw completo con predisposizione al sistema di accumulo ecc). Consegna dicembre 2027

    Riferimento: I1-4

    Tipologia: Casa Semindipendente

    Comune: Sarzana

    Zona: Nave

    Cucina: Angolo cottura

    N. Bagni: 2

    N. Camere: 3

    Box: Posto auto scoperto

    Piano: Su più livelli di 2

    Anno costruzione: 2026

    Stato conservazione: Nuovo

    Stato: Nuovo

    Spese cond. annue €:

    Riscaldamento: Autonomo

    Classe energetica:Classe A1

    Terrazzi 32 mq, Balconi 32 mq, Giardino di proprietà 600 mq, Condizionatore